27930 Aviron
Maison de 167 m²
Maison de 167 m²
A AVIRON Village à 5min d'EVREUX et ses commodités, avec Transurbain idéale pour une famille.
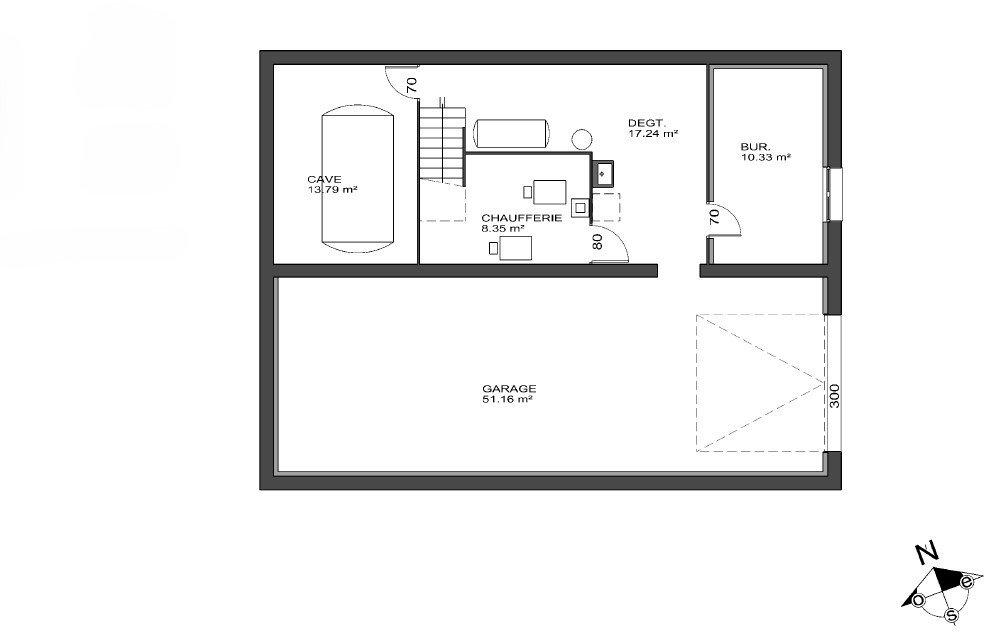
Maison traditionnelle à rafraichir sur sous sol total comprenant :
En rez de chaussé :
- une entrée,
- un séjour avec cheminée,
- une salle à manger,
- une cuisine,
- un wc,
- deux chambres
- une salle de bains.
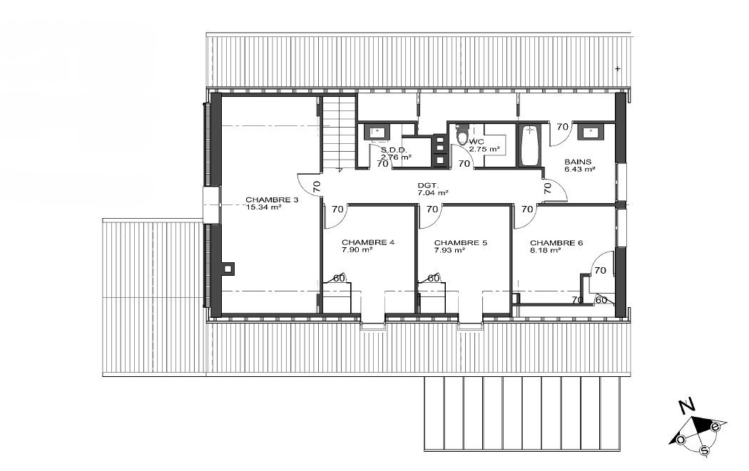
A l'étage :
- un palier desservant
- quatre chambres,
- un wc
- 2 salles d'eau (1 douche et 1 bain).
La maison bénéficie d'un chauffage au fioul ainsi qu'un foyer ouvert pour des soirées chaleureuses.
Un grand jardin de 1980 m² agrémenté de magnifiques arbres cinquantenaires, parfait pour profiter de la nature.
Date de réalisation du diagnostic énergétique : le 26/03/2025
Consommation énergie primaire : 277 kWh/m²/an
Emission de gaz à effet de serre : 75kg CO2/m²/an
Montant estimé des dépenses annuelles d'énergie pour un usage standard : entre 5 490 € et 7 500€ par an indexées aux années 2021, 2022 et 2023 (abonnements compris).
Logement à consommation énergétique excessive : classe F
Les informations sur les risques auxquels ce bien est exposé sont disponibles sur le site Géorisques : www.georisques.gouv.fr
Maison traditionnelle à rafraichir sur sous sol total comprenant :
En rez de chaussé :
- une entrée,
- un séjour avec cheminée,
- une salle à manger,
- une cuisine,
- un wc,
- deux chambres
- une salle de bains.
A l'étage :
- un palier desservant
- quatre chambres,
- un wc
- 2 salles d'eau (1 douche et 1 bain).
La maison bénéficie d'un chauffage au fioul ainsi qu'un foyer ouvert pour des soirées chaleureuses.
Un grand jardin de 1980 m² agrémenté de magnifiques arbres cinquantenaires, parfait pour profiter de la nature.
Date de réalisation du diagnostic énergétique : le 26/03/2025
Consommation énergie primaire : 277 kWh/m²/an
Emission de gaz à effet de serre : 75kg CO2/m²/an
Montant estimé des dépenses annuelles d'énergie pour un usage standard : entre 5 490 € et 7 500€ par an indexées aux années 2021, 2022 et 2023 (abonnements compris).
Logement à consommation énergétique excessive : classe F
Les informations sur les risques auxquels ce bien est exposé sont disponibles sur le site Géorisques : www.georisques.gouv.fr
249 900 €
167 m²
Code Postal
27930
Ville
Aviron
Type de bien
Maison
GES
F
Classe énergie
F
Mise en ligne
22 février 2026
Nombre de vues
1 564