76750 Bois-Guilbert
                Maison récente            
        Maison récente
                                Maison construite en 2010. 
Superficie de 115 M2 avec possibilité de 35 M2 supplémentaires aménageables sous les combles. Terrain de 1244 M2.
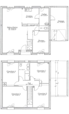
La maison comprend au rdc :
- salon/salle à manger, une cuisine équipée, un bureau, un WC, un cellier et un garage. Une grande terrasse se situe à l'arrière de la maison.
À l'étage :
- 4 chambres et une salle d'eau avec WC.
Chauffage au poêle à bois et/ou chauffage électrique (radiateurs dans toutes les pièces).
Volets roulants dans chaque pièce, ceux du rdc sont électriques. Baies vitrées et fenêtres en PVC et double vitrage.
Portail électrique avec interphone (audio+visio).
La maison se situe à Bois Guilbert, à 7 min de Buchy et 30 min de Rouen. Aucuns travaux à prévoir et lieu calme.
                        Superficie de 115 M2 avec possibilité de 35 M2 supplémentaires aménageables sous les combles. Terrain de 1244 M2.
La maison comprend au rdc :
- salon/salle à manger, une cuisine équipée, un bureau, un WC, un cellier et un garage. Une grande terrasse se situe à l'arrière de la maison.
À l'étage :
- 4 chambres et une salle d'eau avec WC.
Chauffage au poêle à bois et/ou chauffage électrique (radiateurs dans toutes les pièces).
Volets roulants dans chaque pièce, ceux du rdc sont électriques. Baies vitrées et fenêtres en PVC et double vitrage.
Portail électrique avec interphone (audio+visio).
La maison se situe à Bois Guilbert, à 7 min de Buchy et 30 min de Rouen. Aucuns travaux à prévoir et lieu calme.
218 000 €
                    115 m²
                Code Postal
                            76750
                        Ville
                            Bois-Guilbert
                        Type de bien
                            Maison
                        GES
                            C
                        Classe énergie
                            E
                        Mise en ligne
                            2 novembre 2025
                        Nombre de vues
                            1 780